7370 BOUNDARY AVENUE - MLS® # C8052133

$18 / monthly

Property Details


Living Area
0 sqft.
Bedrooms
N/A
Bathrooms
N/A
Lot Size Area
N/A
Taxes
N/A
Type
Industrial
Style
N/A
Basement
Year Built
N/A

Description

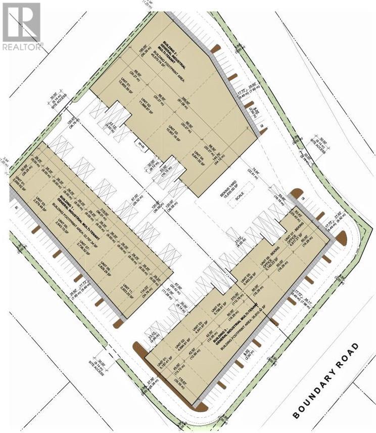
Brand new flexible warehouse building available for lease with an anticipated completion date of 2025 in the newly developed Boundary Road Industrial Park. Multiple flexible units available from 2500 to 10,000+ sq ft. High ceilings, dock and grade doors, ample parking and exterior yard space are just a few of the amenities that will be available within these new warehouse buildings. Reserve your space today for maximum exposure in this exciting new development that the Prince George market desperately needs. (id:2469)

Listing Provided By

Team Powerhouse Realty

Neighborhood Info

All information displayed is believed to be accurate, but is not guaranteed and should be independently verified. No warranties or representations of any kind are made with respect to the accuracy of such information. Not intended to solicit properties currently listed for sale.

The trademarks REALTOR®, REALTORS® and the REALTOR® logo are controlled by The Canadian Real Estate Association (CREA) and identify real estate professionals who are members of CREA. The trademarks MLS®, Multiple Listing Service® and the associated logos are owned by CREA and identify the quality of services provided by real estate professionals who are members of CREA.

REALTOR® contact information provided to facilitate inquiries from consumers interested in Real Estate services. Please do not contact the website owner with unsolicited commercial offers.

Send us your questions about this property and we'll get back to you right away.

Send this to a friend, or email this to yourself

CONTACT